首页 /楼盘 /苏州 /太仓市 /普通住宅/现房/春溪集 更新时间:2025-03-19T15:00:11 /746次浏览 /None人有意向 /None人提问

春溪集

现房 普通住宅
楼盘均价: 12000元/m²
楼盘地址:[苏州-]太仓市沙溪镇仁溪路与瑞云路交汇处...
主力户型: 3室2厅89m² 3室2厅102m²
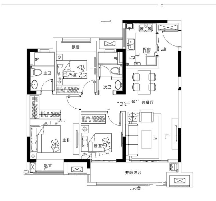
春溪集户型图:

89,户型居室:【3室2厅1厨1卫】,建筑面积:【89平方米】

102,户型居室:【3室2厅1厨2卫】,建筑面积:【102平方米】

注:本页面提供苏州春溪集所有户型图,春溪集在售主推户型,春溪集热门热销户型,春溪集开盘的户型图

更多一居户型、二居户型、三居户型、四居户型、五居及以上户型、别墅户型、商铺户型等都在安居乐业网!欢迎咨询鉴赏了解更多春溪集户型

安居乐业网声明:凡注明“来源:安居乐业”或“来源:安居乐业网”的所有文字图片等资料,版权均属安居乐业网所有,转载请注明出处;本站页面中所有的面积均为建筑面积,本网部分资料为网上搜集转载,均尽力标明作者和出处,对于本网刊载作品涉及版权等问题的,请作者与本网站联系,本网站核实确认后会尽快予以处理。文章内容仅供参考,不构成投资建议,也不代表安居乐业赞同其观点。如其他媒体、网站或个人转载使用,请与著作权人联系,并自负法律责任。