首页 /楼盘 /深圳 /龙华 /普通住宅/现房/山水华庭 更新时间:2025-04-22T17:49:49 /706次浏览 /None人有意向 /None人提问

山水华庭

现房 普通住宅
楼盘均价
41000.0元/m² 价格有效期:2025-01-01 - 2025-12-31 该价格仅供参考,实际以开发商为准
开盘时间
2021年8月21日已开盘
交房时间
预计2023年6月底交房
楼盘地址
观澜街道环观南路与平大路交界处查看地图
售楼地址
龙华区观澜街道环观南路与平大路交界处
主力户型
2室2厅建面104m² 1室1厅建面66m²全部户型
开 发 商
深圳市樟坑径股份合作公司
风险提示
本站用户风险提示

风险提示

本站旨在为广大用户提供更丰富的信息,但由于部分信息通过技术手段生成,部分信息由第三方提供,我们持续通过技术和管理手段提升信息的准确度,但我们无法确保信息的真实性、准确性和完整性。房产交易兹事体大,本站信息不应作为您买卖决策的依据,您决策前应与房源业主核实相关信息、并亲自到房屋中核验信息,或以产权证明、政府类网站发布的官方信息为准。本站不对您交易过程中对本网站信息产生的依赖承担任何明示或默示的担保责任或任何责任。
请您详细阅读如下声明:
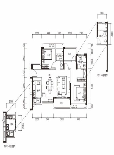
  • 1、关于参考户型图

    本网呈现的户型图为平台根据已拍摄的VR内容/数据绘制而成的非标准的参考户型图,其中户型结构及房屋面积并非按国家标准进行的测绘专业活动取得,我们会持续改进技术,但因为设备、技术、摄影师人为操作偏差等原因,参考户型图与真实现状一定存在差异,我们无法保障户型图准确性和差异率,户型图仅供参考,不应作为您交易的决策依据,房屋面积的准确信息请您与房源业主核实,并请以产权证明或您委托的专业机构测量结果为准。

  • 2、关于房屋装修情况

    本网房源图片、VR效果图、视频等呈现出的房屋装修情况可能因为拍摄时间、拍摄角度等原因和实际场景存在出入,仅供参考,不应作为您交易的决策依据,请以您在看房时房源的实际装修情况为准。

  • 3、关于房屋情况

    本网展示的房源信息、交易信息等(包括但不限于房屋面积、所在楼层、房屋朝向、房屋用途、建成年代、建筑结构、供暖方式、抵押信息、交易权属)由经纪人提供,仅供参考不应作为您交易的决策依据,房源的准确信息请您与房源业主核实,并以房本信息、房屋实际情况、您签订房屋买卖合同中披露的信息为准。

  • 4、关于房屋周边配套等

    房源介绍中的周边配套、在建设施、规划设施、地铁信息、绿化率、得房率等内容均系第三方提供,仅供参考不应作为您交易的决策依据,房屋周边配套请您与房源业主及主管部门核实,并以房本信息、房屋实际情况、您签订房屋买卖合同中披露的信息为准。

  • 5、关于距离

    房源介绍中与距离相关的数据均来源于百度地图。

更多详情信息>> 收藏
4000526667转1333

联系时,请告之在“房产网”上看到,谢谢!

  • userfiles/image/20240716/cqb2vmdgg6aae8nvnj0g.jpg
  • userfiles/image/20240716/cqb2vmtgg6aae8nvnj10.jpg
  • userfiles/image/20240716/cqb2vn5gg6aae8nvnj1g.jpg
  • userfiles/image/20240716/cqb2vn5gg6aae8nvnj20.jpg
  • userfiles/image/20250303/cv2k6e5gg6absrd4pl30.jpg
  • 山水华庭山水华庭
  • 山水华庭山水华庭
  • 山水华庭山水华庭
  • 山水华庭山水华庭
  • 山水华庭山水华庭

最新动态

楼盘订阅

(我们将为您保密个人信息)

户型图

楼盘图库

山水华庭地图

更多>>

山水华庭价格走势

更多>>

楼盘点评

综合评分 90.11/100
  • 价格:90.11分93人
  • 地理:90.11分92人
  • 周边:90.11分92人
  • 物业:90.11分92人

安居乐业网声明:凡注明“来源:安居乐业”或“来源:安居乐业网”的所有文字图片等资料,版权均属安居乐业网所有,转载请注明出处;本站页面中所有的面积均为建筑面积,本网部分资料为网上搜集转载,均尽力标明作者和出处,对于本网刊载作品涉及版权等问题的,请作者与本网站联系,本网站核实确认后会尽快予以处理。文章内容仅供参考,不构成投资建议,也不代表安居乐业赞同其观点。如其他媒体、网站或个人转载使用,请与著作权人联系,并自负法律责任。