首页 /楼盘 /常州 /新北 /普通住宅/期房/国色风华 更新时间:2025-10-09T15:12:30 /447次浏览 /None人有意向 /None人提问

国色风华

期房 普通住宅
楼盘均价: 28000元/m²
楼盘地址:[常州-]新北区晋陵北路以东太湖东路以南...
主力户型: 5室2厅233m² 4室2厅175m² 3室2厅140m²
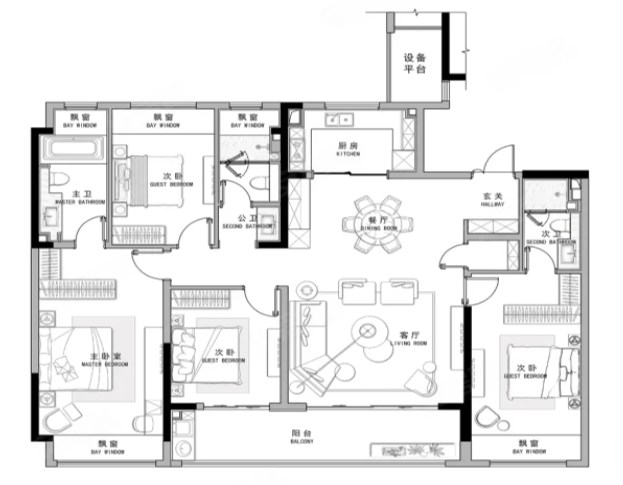
国色风华户型图:

233,户型居室:【5室2厅1厨3卫】,建筑面积:【233平方米】

175,户型居室:【4室2厅1厨3卫】,建筑面积:【175平方米】

140,户型居室:【3室2厅1厨2卫】,建筑面积:【140平方米】

注:本页面提供常州国色风华所有户型图,国色风华在售主推户型,国色风华热门热销户型,国色风华开盘的户型图

更多一居户型、二居户型、三居户型、四居户型、五居及以上户型、别墅户型、商铺户型等都在安居乐业网!欢迎咨询鉴赏了解更多国色风华户型

安居乐业网声明:凡注明“来源:安居乐业”或“来源:安居乐业网”的所有文字图片等资料,版权均属安居乐业网所有,转载请注明出处;本站页面中所有的面积均为建筑面积,本网部分资料为网上搜集转载,均尽力标明作者和出处,对于本网刊载作品涉及版权等问题的,请作者与本网站联系,本网站核实确认后会尽快予以处理。文章内容仅供参考,不构成投资建议,也不代表安居乐业赞同其观点。如其他媒体、网站或个人转载使用,请与著作权人联系,并自负法律责任。