首页 /楼盘 /徐州 /鼓楼区 /普通住宅/现房/苏宁世茂璀璨云著 更新时间:2025-02-21T14:06:12 /441次浏览 /None人有意向 /None人提问

苏宁世茂璀璨云著

现房 普通住宅
楼盘均价: 17100元/m²
楼盘地址:[徐州-]九里山东路与和平北路交汇处...
主力户型: 4室2厅125m² 3室2厅112m² 3室2厅98m²
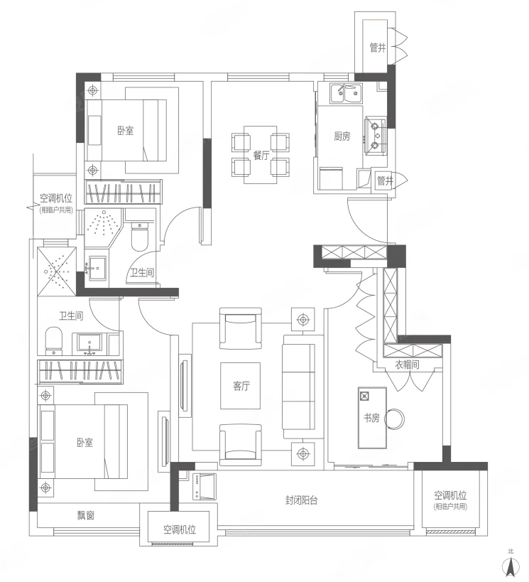
苏宁世茂璀璨云著户型图:

C,户型居室:【4室2厅1厨2卫】,建筑面积:【125平方米】

B,户型居室:【3室2厅1厨2卫】,建筑面积:【112平方米】

A,户型居室:【3室2厅1厨1卫】,建筑面积:【98平方米】

注:本页面提供徐州苏宁世茂璀璨云著所有户型图,苏宁世茂璀璨云著在售主推户型,苏宁世茂璀璨云著热门热销户型,苏宁世茂璀璨云著开盘的户型图

更多一居户型、二居户型、三居户型、四居户型、五居及以上户型、别墅户型、商铺户型等都在安居乐业网!欢迎咨询鉴赏了解更多苏宁世茂璀璨云著户型

安居乐业网声明:凡注明“来源:安居乐业”或“来源:安居乐业网”的所有文字图片等资料,版权均属安居乐业网所有,转载请注明出处;本站页面中所有的面积均为建筑面积,本网部分资料为网上搜集转载,均尽力标明作者和出处,对于本网刊载作品涉及版权等问题的,请作者与本网站联系,本网站核实确认后会尽快予以处理。文章内容仅供参考,不构成投资建议,也不代表安居乐业赞同其观点。如其他媒体、网站或个人转载使用,请与著作权人联系,并自负法律责任。