首页 /楼盘 /深圳 /南山 /普通住宅/现房/汉园茗院 更新时间:2025-10-20T16:56:07 /995次浏览 /None人有意向 /None人提问

汉园茗院

现房 普通住宅
楼盘均价: 65000元/m²
楼盘地址:[深圳-]南山留仙大道与长源二路的交汇处...
主力户型: 2室1厅109m² 4室2厅187m² 4室2厅160m² 4室2厅158m²
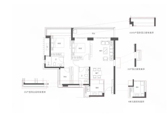
汉园茗院户型图:

109,户型居室:【2室1厅1厨2卫】,建筑面积:【109平方米】

187,户型居室:【4室2厅1厨3卫】,建筑面积:【187平方米】

160,户型居室:【4室2厅1厨3卫】,建筑面积:【160平方米】

158,户型居室:【4室2厅1厨3卫】,建筑面积:【158平方米】

117,户型居室:【4室2厅1厨2卫】,建筑面积:【117平方米】

112,户型居室:【2室2厅1厨2卫】,建筑面积:【112平方米】

注:本页面提供深圳汉园茗院所有户型图,汉园茗院在售主推户型,汉园茗院热门热销户型,汉园茗院开盘的户型图

更多一居户型、二居户型、三居户型、四居户型、五居及以上户型、别墅户型、商铺户型等都在安居乐业网!欢迎咨询鉴赏了解更多汉园茗院户型

安居乐业网声明:凡注明“来源:安居乐业”或“来源:安居乐业网”的所有文字图片等资料,版权均属安居乐业网所有,转载请注明出处;本站页面中所有的面积均为建筑面积,本网部分资料为网上搜集转载,均尽力标明作者和出处,对于本网刊载作品涉及版权等问题的,请作者与本网站联系,本网站核实确认后会尽快予以处理。文章内容仅供参考,不构成投资建议,也不代表安居乐业赞同其观点。如其他媒体、网站或个人转载使用,请与著作权人联系,并自负法律责任。