首页 /楼盘 /深圳 /龙华 /普通住宅/期房/幸福城丨臻园 更新时间:2025-10-24T10:29:05 /394次浏览 /0人有意向 /0人提问

幸福城丨臻园

期房 普通住宅
楼盘均价: 46000元/m²
楼盘地址:[深圳-] 龙华街道建设路与人民路交汇处(壹方天地旁)...
主力户型: 4室2厅114m² 4室3厅163m² 4室3厅142m² 4室2厅127m²
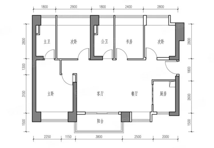
幸福城丨臻园户型图:

114,户型居室:【4室2厅1厨2卫】,建筑面积:【114平方米】

163,户型居室:【4室3厅1厨2卫】,建筑面积:【163平方米】

142,户型居室:【4室3厅1厨2卫】,建筑面积:【142平方米】

3,户型居室:【4室2厅1厨2卫】,建筑面积:【127平方米】

2,户型居室:【4室2厅1厨2卫】,建筑面积:【118平方米】

1,户型居室:【3室2厅1厨2卫】,建筑面积:【96平方米】

注:本页面提供深圳幸福城丨臻园所有户型图,幸福城丨臻园在售主推户型,幸福城丨臻园热门热销户型,幸福城丨臻园开盘的户型图

更多一居户型、二居户型、三居户型、四居户型、五居及以上户型、别墅户型、商铺户型等都在安居乐业网!欢迎咨询鉴赏了解更多幸福城丨臻园户型

安居乐业网声明:凡注明“来源:安居乐业”或“来源:安居乐业网”的所有文字图片等资料,版权均属安居乐业网所有,转载请注明出处;本站页面中所有的面积均为建筑面积,本网部分资料为网上搜集转载,均尽力标明作者和出处,对于本网刊载作品涉及版权等问题的,请作者与本网站联系,本网站核实确认后会尽快予以处理。文章内容仅供参考,不构成投资建议,也不代表安居乐业赞同其观点。如其他媒体、网站或个人转载使用,请与著作权人联系,并自负法律责任。