首页 /楼盘 /昆明 /盘龙区 /公寓/现房/昆明君悦居 更新时间:2026-01-19T15:09:25 /222次浏览 /None人有意向 /None人提问

昆明君悦居

现房 公寓
楼盘均价: 35000元/m²
楼盘地址:[昆明-]盘龙东风东路与北京路交叉口昆明-恒隆广场...
主力户型: 1室2厅133m² 2室2厅178m² 3室2厅252m²
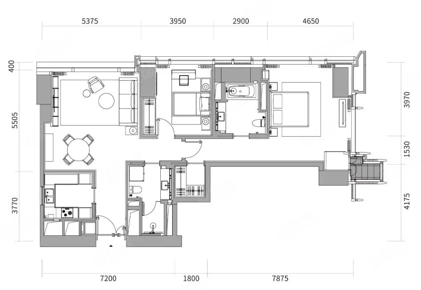
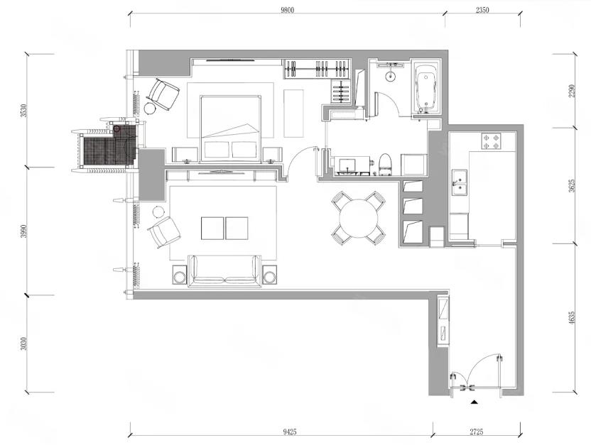
昆明君悦居户型图:

133,户型居室:【1室2厅1厨1卫】,建筑面积:【133平方米】

178,户型居室:【2室2厅1厨2卫】,建筑面积:【178平方米】

252,户型居室:【3室2厅1厨3卫】,建筑面积:【252平方米】

注:本页面提供昆明昆明君悦居所有户型图,昆明君悦居在售主推户型,昆明君悦居热门热销户型,昆明君悦居开盘的户型图

更多一居户型、二居户型、三居户型、四居户型、五居及以上户型、别墅户型、商铺户型等都在安居乐业网!欢迎咨询鉴赏了解更多昆明君悦居户型

安居乐业网声明:凡注明“来源:安居乐业”或“来源:安居乐业网”的所有文字图片等资料,版权均属安居乐业网所有,转载请注明出处;本站页面中所有的面积均为建筑面积,本网部分资料为网上搜集转载,均尽力标明作者和出处,对于本网刊载作品涉及版权等问题的,请作者与本网站联系,本网站核实确认后会尽快予以处理。文章内容仅供参考,不构成投资建议,也不代表安居乐业赞同其观点。如其他媒体、网站或个人转载使用,请与著作权人联系,并自负法律责任。