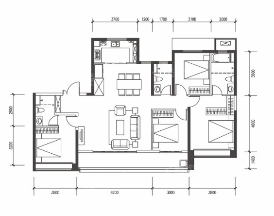
4室2厅1卫
期房
建筑面积:
约220㎡
查得房率
参考总价:
572万/套
询首付
参考单价:
26000元/㎡
装修:
毛坯
状态:
期房
所属楼盘:
越秀铁建·樽樾
余房查询
计算月供
优选专属客户经理
不满意,换一个
董剑
评分 : 5.0 |
服务 : 489 |
带看 : 59
优惠活动
预约专车看房
享受一对一专业服务
|
人已预约
立即预约
获取楼盘优惠
享受一对一专业服务
|
人已预约
立即获取
加入购房咨询群
享受一对一专业服务
|
人已预约
立即进群
本楼盘其他户型图
4居
5居
4室2厅1卫
期房
热销
约372万/套
建面约143㎡
户型方正,活动区域宽阔,居住...
4室2厅1卫
期房
热销
约572万/套
建面约220㎡
户型方正,活动区域宽阔,居住...
5室2厅1卫
期房
热销
约682万/套
建面约262㎡
户型方正,活动区域宽阔,居住...
相似户型推荐
高新玖號院 4室2厅1卫
建面约143㎡
约372万/套
中建悦庐 4室2厅1卫
建面约168㎡
约437万/套
绿城熙海棠 4室2厅1卫
建面约140㎡
约364万/套
保利云谷和著 4室2厅1卫
建面约139㎡
约362万/套
西安高新天境 4室3厅1卫
建面约410㎡
约1066万/套
华宇御璟天宸 4室3厅1卫
建面约175㎡
约455万/套
×
新动态通知
我们将为您保密个人信息!请填写您接收订阅的手机号码
已有
117
人实地看房
确定
我已阅读并同意《房产网用户服务协议》